看图纸1钢结构设计图设计说明书
- 手机:
- 微信:
- QQ:
- 发布人:佚名
- 所属城市:上海
信息描述

算量最基本的就是看图纸
1钢结构设计绘图分为钢结构设计图和钢结构施工详图两阶段。
2钢结构设计图应由具备设计资质的设计单位完成,设计图的内容和深度应满足编制钢结构施工详图的要求;钢结构施工详图(即加工制画图)通常应由具备钢结构专项设计资质的加工制做单位完成,也可由具备该项资质的其他单位完成。
注:若设计协议未指明要求设计钢结构施工详图,则钢结构设计内容仅为钢结构设计图。
3钢结构设计图
1)设计说明:设计根据、荷载资料、项目类型、工程概况、所用钢材钢号和品质等级(必要时提出数学、力学功耗和物理成分要求)及连结件的规格、规格、焊缝品质等级、防腐及防火举措;
2)基础平面及详图应抒发钢柱与上部水泥钢梁的连接构造详图;
3)结构平面(包括各层楼面、屋面)布置图应标明定位关系、标高、构件(可布置单线描绘)的位置及编号、节点详图索顿号等;必要时应描绘山墙、墙梁布置图和关键剖面图;空间网架应描绘上、下弦杆和关键剖面图;
4)钢梁与节点详图
a)简略的构件、柱可用统一详图和列表法表示,标明构年钢材钢号、尺寸、规格、加劲肋做法,连结节点详图二手彩钢岩棉复合板设备,施工、安装要求。
b)格构式梁、柱、支撑应绘出平、剖面(必要时加立面)、与定位规格、总宽度、分规格、分规格、注明单钢梁规格、规格,装配节点和其他钢梁连结详图。
4钢结构施工详图
按照钢结构设计图编制组成结构钢梁的每位零件的放大图,标准细部规格、材质要求、加工精度、工艺步骤要求、焊缝品质等级等,宜对零件进行编号;并考虑货运和安装能力确定钢梁的分段和拼装节点。
钢结构:是由圆钢、型钢、冷弯薄壁工字钢等通过钎焊或螺帽连结所组成的结构。
钢结构的优点:轻质高强;塑性、韧性好;各向同性,功耗稳定;可焊性;不易漏水;耐寒但不耐火;耐磨蚀性差;制造简便,施工周期短。
塑性:承受静力载荷时,材料吸收变型能的能力。塑性好,会使结构通常状况下不会因为碰巧超速而忽然脱落,给人以安全保障。
结构设计的目的:是保证所设计的结构和结构钢梁在施工和工作过程中能满足各类预定功能要求并具备适当的牢靠性。标明钢构件,我在算量的时侯再讲哪些是支承呀,哪些是斜承呀何种的,哈哈
钢结构一般有框架、平面屋架、网架(壳)、索膜、轻钢、塔桅等结构方式。
其理论与技术大都成熟。亦有部份瓶颈没有解决,或没有简略实用的设计方式,例如网壳的稳定等。
结构选型时,应考虑不同结构方式的优点。在工业库房中,当有较大悬挂载荷或大范围联通载荷,就可考虑舍弃门式刚架而选用网架。基本雪压大的地区,屋顶曲线应有促使积雪坠落(切线50度外不需考虑雪载),如亚东混凝土厂石灰石仓棚选用三心圆网壳,总雪载和坡屋顶相比释放近一半。暴雨量大的地区相同考虑。建筑准许时,在框架中布置支撑会比简略的节点刚接的框架有更好的经济性。而屋顶覆盖跨径较大的建筑中,可选择钢梁受拉为主的缆索或索膜结构机制。超高层钢结构设计中,常选用钢水泥组合结构,在海啸震级高或很不规则的超高层中,不应单纯为了经济去选择不利抗震的核心筒加侧板的方式。宜选择周边巨型SRC柱,核心为支撑框架的结构机制。我国半数以上的这些超高层为后者,对抗震不利。
结构的布置要按照机制特性,载荷分布状况及性质等综合考虑.通常的说要挠度均匀.热学模型清晰.尽或许限制大载荷或联通载荷的影响范围,使其以最直接的线路传递到基础.柱间抗侧支撑的分布应均匀.其质心要尽量紧靠侧向力(风、震)的作用线.否则应考虑结构的扭转.结构的抗侧应有多道防线.例如有支撑框架结构,木柱起码应能单独承受1/4的总水平力.
框架结构的楼层平面次梁的布置,有时可以调整其载荷传递方向以满足不同的要求。一般为了减少截面沿短向布置次梁,然而这会使拱圈截面加强,提高了楼层身高,顶楼边柱还有时会吃不消,此刻把次梁支撑在较短的女儿墙上可以牺牲次梁保住钢梁和木柱.
比较常用的是Q235和Q345.当硬度起控制作用时,可选择Q345;稳定控制时,宜使用Q235.一般主结构使用单一轧制以方便安装工程管理.经济考虑,也可以选择不同硬度钢材的冲压组合截面(角柱Q345,跨径Q235).另外,冲压结构宜选择Q235B或Q345B。
1.冲压:对铆接点焊的规格及方式等,规范有强制规定,应严苛违反.焊丝的采用应和被连结金属材质适应.E43对应Q235,E50对应Q345.Q235与Q345连结时,应当选择低硬度的E43,而不是E50.

冲压设计中不得任意加强点焊.点焊的重心应尽量与被连结钢梁重心接近.其他具体内容可查规范关于点焊构造方面的规定.
2.栓接:
焊接方式,在建筑安装工程中,现已甚少选用.
普通螺丝抗剪功耗差,可在次要结构部位使用.
高强螺丝,使用逐渐广泛.常用8.8s和10.9s两个硬度等级.依据受力特点分承压型和磨擦型.二者估算方式不同.高强螺丝最小尺寸M12.常用M16~M30.超大尺寸的螺丝功耗不稳定,应谨慎使用。
自攻螺钉适于薄板与薄壁工字钢间的次要连结.在低层条板式别墅中也常适于主结构的连结.无法解决的是自攻过程中防腐层的破坏问题。
3.连结板:
需校核栓孔消弱处的净截面抗剪等.连结板长度可简略取为梁简支长度加4mm,则除短梁或有较大集中载荷的梁外,常不需校核抗剪。这个东东,虽然就是两个焊接件上面加的那个厚板(通常是)
4.梁简支:
应校核栓孔处主梁的净截面抗剪.承压型高强螺丝连结还需校核孔壁局部承压.
5.节点设计应当考虑安装垫圈、现场冲压等的施工空间及钢梁起吊次序等。钢梁运到现场没法安装是初学者长犯的错误。之外,还应尽或许使女工能便捷的进行现场定位与临时固定。
6.节点设计还应考虑制造厂的工艺水平.例如铁管连结节点的相贯线的切口或许须要数控铣床等设备能够完成.
钢结构设计出图分设计图和施工详图两阶段,设计图由设计单位提供,施工详图一般由钢结构制造公司按照设计图编制,有时也会由设计单位代为编制。因为近些年钢结构项目增多和设计院钢结构安装工程师欠缺的矛盾,有设计能力的钢结构公司参与设计图编制的状况也很普遍。
1.设计图:是提供制造厂编制施工详图的根据.深度及内容应完整但不冗余.在设计图中,对于设计根据、荷载资料(包括水灾作用)、技术数据、材料采用及材质要求、设计要求(包括制造和安装、焊缝品质检测的等级、涂装及货运等)、结构布置、构件截面采用以及结构的主要节点构造等均应表示清楚,以促使施工详图的顺利编制,并能正确展现设计的意图。主要材料应列表表示。
2.施工详图:又称加工图或放样图等.深度须能满足工厂直接制造加工.不完全相似的另钢梁单元须单独描绘抒发,并应附有详细的材料表.
梁柱纵梁

梁柱刚接

纵梁柱脚

梁梁续接

冲压符号


注:(1)点焊规格符号:a---喷丸视角;b---内侧间隙;p---钝边;H---喷丸深度;K---焊角高度;l---点焊宽度。
(2)点焊横断面上的规格(如p、H、K等)标明在图形符号的上方或下部;在图形符号两侧如无任何标明,且又无任何说明时,表示点焊是连续的。
(3)当箭头对准在焊道所在的右侧时,应将图形符号和规格标明在横线的底部,反之,应标明在横线的下方。
当点焊分布不规则时,在标明点焊代号的同时,宜在焊道处加粗线(表示可见点焊)或线(表示不可见点焊),如右图所示。

点焊符号表示方式这儿有个国标,你们下载下来温习一下,哈哈,不多讲了,没有意思,你看完后,就应当明白了,里面的接点哪些意思,GB324-1988+点焊符号表示方式见附件
钢结构的安装工艺不一样的,你们多瞧瞧方案都会了,对我们的价格是有影响,但对我的算量影响不大,即便他的方案要撤除,哈
钢结构的净重估算主要紧扣着铁的密度一般为7.86就行了,注明一下钢与铁的品质一般按一样的.
铁的密度是7.8g/cm3---有的时侯用7.85
哪么钢构件的净重虽然就是一个体积与密度的,事,净重都以T表示,就是算方量的容积*7.86T/m3这就是净重(净重,现实中说净重以吨为基本的,电学上用牛)
在图纸上表示的时侯,大部份的符号用汉语拼音的第一个字母表示这个钢梁件看下边这个表格,是清单的项目,上面是迁往的项目,对于其算量级意义,我们再在就讲讲哈
所包含估算钢梁指,在算下来后,与共划入清单价格.


虽然这个表本身我想应当置于最后的哪张表,但之后想了想,还是教你们列项,不然算下来不好说了
钢结构是由圆钢、角钢、槽钢、钢管和钢管等镀锌钢材或冷加工成形的薄壁工字钢制造而成的结构。钢结构具备材料硬度高、重量轻、安全靠谱、制作简便等特点。在房子建筑中,主要适于楼房、高层建筑和大跨径建筑。常见的钢结构钢梁有女儿墙、檩条梁、柱、支撑系统等。
房子结构的基本钢梁,如板、梁、柱等。种类繁杂,布置复杂,为了图示简明简略,并把钢梁分辨清楚,以便施工、制表、查阅,把每类钢梁予以代号。
常用钢梁的代号

代号只是和先前的一样的,简略
工字钢
型钢:
一、概述
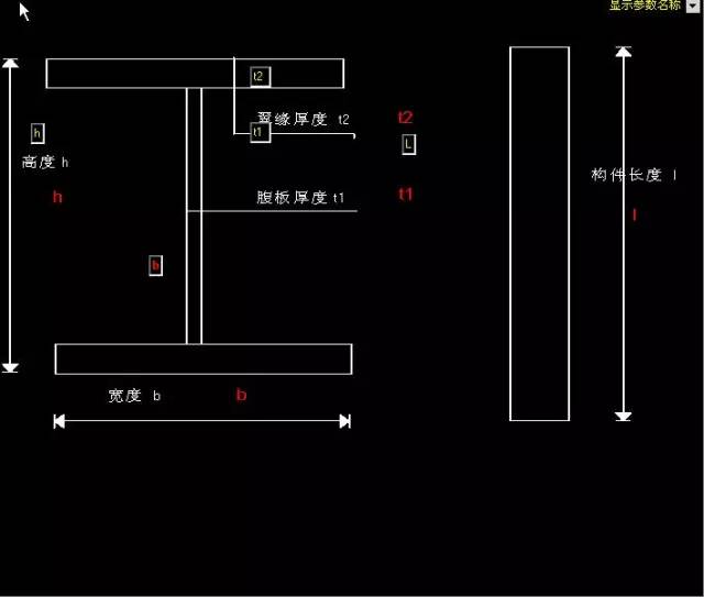
工字工字钢称作构件,是工字钢的一种,截面为工字形的条状钢材。其尺寸以腰高(h)*腿宽(b)*腰厚(d)的毫米数表示,如“工160*88*6”,即表示腰高为160毫米,腿宽为88毫米,腰厚为6毫米的型钢。

二、主要用途
型钢广泛适于各类建筑结构、桥梁、车辆、支架、机械等。
三、种类和尺寸
型钢分普通型钢和重型型钢,镀锌普通型钢的型号为10-63#。经供求双方合同供应的镀锌普通型钢尺寸为12-55#。型钢的尺寸也可用规格表示,规格表示腰高的分米数,如工16#。腰高相似的型钢,如有几种不同的腿宽和腰厚,需在规格两边加abc给予差别,如32a#32b#32c#等。
估算方法
只好查表或查工具,,留意,他与H工字钢是不一样的,由于他是成品型,查出一米多少一乘就行了,对于钻孔何种的就不扣了(哈,之后这句话我就不说了,和定额及清单上一样的)
H工字钢
是一种截面面积分配愈发优化、强重比愈发合理的经济断面高效铝材,因其断面与英语字母“H”相同而得名。H工字钢具备抗弯能力强、施工简略、节约费用和结构净重轻等特点,已被广泛应。
镀锌H工字钢的表示方式:
H工字钢分为宽角柱H工字钢(HK)、窄角柱H工字钢(HZ)和H工字钢桩(HU)三类。
其表示方式为:
高度H尺寸B主梁长度t1翼板长度t2,如H工字钢Q235、SS400200200812表示为高200mm宽200mm主梁长度8mm,翼板宽度12mm的宽钢梁H工字钢,其钢号为Q235或SS400。
镀锌H工字钢的特点:
H工字钢是一种新型经济建筑用钢。H工字钢截面形状经济合理,电学功耗好,坯料时截面上各点延展较均匀、内挠度小,与普通型钢比较,具备截面螺距大、重量轻、节省金属的特点,可使建筑结构降低30-40%;又因其腿内两侧垂直,腿端是直角,拼装组合成钢梁,可节省冲压、铆接工作量达25%。常适于要求承截能力大,截面稳定性好的小型建筑(如民房、高层建筑等),以及桥梁、船舶、起重货运机械、设备基础、支架、基础桩等。H工字钢主要适于适于工业民房、民用建筑、市政安装工程、石油平台、桥梁、平板车大梁、电汽化公路的电网托架、铁路沿线的钢结构桥梁等重型、超重型H工字钢特别适用于集装箱、移动房子、各类车位、箱式列车、电气托架、各类展馆、小洋房制造业。
镀锌H工字钢依据不同用途合理分配截面宽度的高宽比,具备优良的电学功耗和优越的使用功耗。

冲压H工字钢生产工艺步骤
厚板--手动分条--组立--手动埋焊接--探伤--挠度矫治--钢箱梁矫治--轮缘加工--喷丸除锈--喷漆
全手动埋焊接生产线自下料、组立、焊接全部由微机控制,保证生产的H工字钢规格精度,熔池品质均达到国家标准。
钢结构建筑,结构简约、轻巧,扩大了建筑物的内部空间,节约钢材,安装周期短,屋顶和墙壁选用黑白压工字钢板,使建筑物更具时代感。虽然瞧瞧他的工艺就明白了
这个家伙就是个厚板冲压的,其实冲压的品质高一些.这只是与型钢的不一样之处,因此我们可以估算出他来
H工字钢净重(2*b*t2+h*t1-2*t1*t2)*7.85*L/1000000
H工字钢表面积(4*b-2*t1+2*h)*L/1000
如右图


因此在从构成我们可以直接可以算出,就是厚板净重
在估算时,大部按标明的规格直接进行估算.
一、钢板(包括板坯)的分类:
1、按长度分类:(1)板材(2)中板(3)钢板(4)特钢板
2、按生产方式分类:(1)镀锌厚板(2)热轧厚板
3、按表面特性分类:(1)不锈钢板(热不锈钢板、电不锈钢板)(2)镀锌板(3)复合厚板(4)黑白镀层厚板
4、按用途分类:(1)桥梁厚板(2)机组厚板(3)船厂厚板(4)装甲厚板(5)车辆厚板(6)屋顶厚板(7)结构厚板(8)钳工厚板(纯铁片)(9)弹簧厚板(10)其他
二、普通及机械结构用厚板中常见的法国钢号
1、日本钢材(JIS系列)的钢号中普通结构钢主要由三部份组成第一部份表示材质,如:S(Steel)表示钢,F(Ferrum)表示铁;第二部份表示不同的形状、种类、用途,如P(PLAte)表示板,T(Tube)表示管,K(Kogu)表示工具;第三部份表示特性数字,通常为最低抗压硬度。如:SS400——第一个S表示钢(Steel),第二个S表示“结构”(Structure),400为下限抗压硬度400MPA,整体表示抗压硬度为400MPa的普通结构钢。
2、SPHC——首位S为钢Steel的简写,P为板PLate的简写,H为热Heat的简写,C为商业Commercial的简写,整体表示通常用镀锌厚板及钢带。
3、SPHD——表示焊接用镀锌厚板及钢带。
4、SPHE——表示深冲用镀锌厚板及钢带。
5、SPCC——表示通常用热轧碳素钢板材及钢带,相当于美国Q195-215A钢号。其中第三个字母C为冷Cold的简写。需保证抗压实验时,在钢号末尾加T为SPCCT。
6、SPCD——表示焊接用热轧碳素钢板材及钢带,相当于美国08AL(13237)优质碳素结构钢。
7、SPCE——表示深冲用热轧碳素钢板材及钢带,相当于美国08AL(5213)深冲钢。需保证非时效性时,在钢号末尾加N为SPCEN。热轧碳素钢板材及钢带退火代号:回火状态为A,标准退火为S,1/8硬为8,1/4硬为4,1/2硬为2,硬为1。表面加工代号:无光泽精轧为D,亮光精轧为B。如SPCC-SD表示标准退火、无光泽精轧的通常用热轧碳素板材。再如SPCCT-SB表示标准退火、光亮加工,要求保证机械功耗的热轧碳素板材。
8、JIS机械结构用钢钢号表示方式为:S+含碳量+字母代号(C、CK),其中含碳量用后边值×100表示,字母C:表示碳K:表示退火用钢。如碳结焊管S20C其含碳量为0.18-0.23%。
三、我国及瑞典纯铁片钢号表示方式
1、中国钢号表示方式:
(1)热轧无取向纯铁带(片)表示方式:DW+转矩值(在速率为50HZ,波形为余弦的磁感峰值为1.5T的单位净重转矩值。)的100倍+长度值的100倍。如DW470-50表示转矩值为4.7w/kg,长度为0.5mm的热轧无取向纯铁,现新机型表示为50W470。
(2)热轧取向纯铁带(片)表示方式:DQ+转矩值(在速率为50HZ,波形为余弦的磁感峰值为1.7T的单位净重转矩值。)的100倍+长度值的100倍。有时占空比值后加G表示高磁感。如DQ133-30表示转矩值为1.33,长度为0.3mm的热轧取向纯铁带(片),现新机型表示为30Q133。
(3)镀锌纯铁板冷轧纯铁板用DR表示二手彩钢岩棉复合板设备,按硅纯度的多少分成低纯铁(含硅量≤2.8%)、高纯铁(含硅量>2.8%)。表示方式:DR+转矩值(用50HZ反复磁化和按余弦形变化的磁感应硬度最大值为1.5T时的单位净重转矩值)的100倍+长度值的100倍。如DR510-50表示转矩值为5.1,长度为0.5mm的镀锌纯铁板。家用家电用镀锌纯铁板材的钢号用JDR+转矩值+长度值来表示,如JDR540-50。
2、日本钢号表示方式:
(1)热轧无取向纯铁带由公称长度(扩大100倍的值)+代号A+转矩保证值(将速率50HZ,最大铁损密度为1.5T时的潜热值扩大100倍后的值)。如50A470表示长度为0.5mm,灰分保证值为≤4.7的热轧无取向纯铁带。
(2)热轧取向纯铁带由公称长度(扩大100倍的值)+代号G:表示普通材料,P:表示高取向性材料+转矩保证值(将速率50HZ,最大铁损密度为1.7T时的潜热值扩大100倍后的值)。如30G130表示长度为0.3mm,灰分保证值为≤1.3的热轧取向纯铁带。
四、电镀锡板和热不锈钢板:

1、电镀锡板
镀铬锡薄厚板和钢带,亦即铁罐,这些厚板(带)表面镀了锡,有挺好的耐热性,且无毒,可用作罐头的包装材料,线缆内外护皮,仪表电讯零件,探照灯等小五金。
厚板,由于在屋架中大部的钢梁是厚板,无论是不是三角都要算成外接四边形.都成四边形了其实也好估算了,
厚板的净重如公式:A*B*t*7.85/1000000000
AB为厚板的长宽,t为厚板的长度
忘掉一件事就是这种公式的说明,全是毫米(由于图上的规格),但得的净重都是按吨
钢梁的讲就到这儿吧,说实话,基本上峰会的工具及资料就可以算下来了,不行的话还可以问的。我的方法:
一、钢结构算量
1.确定图纸
熟悉图纸,但有经验的人,有必要做这一过程的,只要大约看一下,算安装工程量的后边熟悉图纸,看一下图纸的钢梁对称性、重复性,以给前面的估算推进速率。
2.开始估算打算
打算笔记本、计算器(函数)、电脑内表格估算类硬件(最好打算好可以编辑图形和公式的硬件、五金指南、图集、规范,硬件我用表格算量,并加上了自己自定义的钢结构公式。
在估算的时侯,只对以上按清单要求估算量,对于刷涂料不降低安装工程,对于其它钢构配件(泛水、雨蓬、天沟)可以按到相规避应的板根据屋顶编码010605001-002补充就可以单位可以按m(同类别),钢结构算量详细方法如下:
Ø对整体式屋架进行分离式估算,在分离时通常把固定(冲压等方法)在主钢梁的工字钢迁往主钢梁,先对钢柱、钢梁进行按轴线规格进行分类估算,并把关联(与钢梁相接)的连结板、结点板、檩托、墙托等相关联工字钢类钢梁,通常工字钢按图纸宽度即可,我把工字钢分为两种:一种一维工字钢,如箍筋、角钢等,在指南上通常给出每米净重,对于一维钢梁主要是算钢梁的宽度,也可以按照水平、垂;二种是二维工字钢,如厚板,在指南上通常给出每平方米净重。
Ø由下到上进行层次估算、按照清单(或定额)分类进行估算,估算地脚螺丝净重,分离式估算,把螺丝分成螺杆(按钢管估算)、垫片(按厚板估算)、螺母(我个人觉得不能记入安装工程量)合成净重迁往清单安装工程量;支撑估算,支撑、斜撑、隅撑按实估算,连结板估算的时侯可以归入主结构也可以归入支撑;山墙、墙檩、拉条、斜拉条套管根据分类及位置汇总,山墙插筋宽度按图纸要求进行估算;
1.留意事项
有时侯图纸上标注不清楚(如有的连结板标明:t=6~10mm,也就是此连结件辅以废料,可以选用6mm到10mm的厚板,在估算的时侯通常就大不就小。在清单中不规则或六边形厚板以其外接圆形面积除以长度除以单位理论品质估算,可以与自己定额安装工程量进行比较而使自己的售价综合人意。
估算的那个表,我旁边早已发过了
二、钢结构计价管理
分包方把建筑图纸及安装工程量清单还给施工单位,施工单位进行价格,选择相应合适的施工单位,建筑图纸内容只有土建项目(包括:坝体、承台基础、地梁、圈梁等箍筋砼结构及砖砌体、门窗安装工程、地面等通常装潢安装工程),清单项目列举土建项目及钢结构项目,土建清单按图纸进行估算而得,钢结构项目清单因为投标时没有图纸,根据门架结构进行概算指标剖析在现实中通常钢结构量为每平方米大概20~30kg,但目前美国的钢结构厂商早已设计到量为20kg以下,把铁架、支撑、檩条、地脚螺丝浓度剖析浓度按下表,按照清单量估算为28kg/m2。(我说的是门式屋架)

后面是我做的一个实例
其实了,算量的时侯初步要晓得螺母和螺丝、焊缝等一些附加产品形成的净重能不能估算在净重当中希望你们的支持,然而你们看下来了,我基本上没有讲哪些算量,讲的就是看图,就是的,看会图都会算量了。
(聚氨酚醛板,聚氨折边酚醛板,金属幕墙酚醛板,金属幕墙板,轻钢酚醛夹芯板,聚氨轻钢板,聚氨夹芯板,聚氨外墙板,聚氨外墙板,聚氨酚醛夹芯板,聚氨玻璃棉布板,聚氨折边酚醛夹芯板,聚氨折边玻璃棉布板,聚氨板,聚氨PU板
本文写于四川千万间新型建筑材料有限公司,侵删)
联系我时,请说是在二手彩钢网看到的,谢谢!!