光伏工程施工质量要求见附录、安装工程工艺、组件支架安装
- 手机:
- 微信:
- QQ:
- 发布人:佚名
- 所属城市:重庆
信息描述
一、施工质量要求
见附表A
二、编制根据
《工程检测规范》GB50026-2007
三、安装工程工艺
1、组件支架安装
1.1、混凝土外墙组件支架
1.1.1、施工打算
a、施工范围
按照设计图纸确定施工范围,项目总监及施工人员到现场进行施工范围确认。
b、技术打算
①项目部技术负责人会同设计部门核实施工图纸,并对施工作业人员进行安装施工技术交底。项目部要熟悉、会审图纸,充分了解设计文件和施工图纸的主要设计意图,明晰工程所采用的设备和材料,明晰图纸所提出的施工要求,便于及早采取举措,确保施工顺利进行。
②施工项目部应熟悉与工程有关的其他技术资料,如施工协议电焊焊的彩钢房骨架,施工及初验规范、技术规范、质量检验评定等强制性文件条文。
③项目总监编制施工组织设计并针对有特殊要求的分项工程编制专项施工方案。按照光伏工程设计文件和施工图纸的要求,结合施工现场的客观条件、设备器材的供应和施工人员数目等情况,安排施工进度计划和编制施工组织计划,做到合理有序的进行安装施工。安装施工计划必须详尽、具体、严密和有序,以便监督施行和科学管理。
c、材料及主要工具
按照公司目前混凝土外墙施工的光伏工程,支架结构涉及到的主要材料有:型钢支架,联接铝材,C工字钢横梁、配套螺丝组、混凝土压块及相关附件等。
按照光伏工程施工特性总结支架安装主要工具如下:
①切割机。用于:型钢、槽钢、圆钢、钢管、C工字钢等现场下料切割;

②电钻。用于钢材现场开孔及机制钉配孔作业。
③电焊机。用于现场光伏支架的点焊。
④各种机型的扳手。用于各类螺丝、螺钉的安装作业。
⑤测量放线工具。按照施工队伍情况自定,用于现场检测、排尺及自检等。
d、作业条件
①在环境气温高于0℃条件下进行电弧焊时,除遵循常温点焊的有关规定外,应调整点焊工艺参数,使熔池和热影响区平缓冷却。风力超过4级,应采取风挡举措;焊后未冷却的接头,应防止遇到冰雪。
②严禁在未有施工保护举措的高处作业。
③施工人员禁止醉酒步入施工现场。
④施工人员步入施工现场禁止穿凉鞋、凉鞋、高跟鞋。
1.1.2、工艺流程图

1.1.3、测量、放线
a、平面控制检测
按照施工设计图纸及设计要求将光伏组件支架平面布置规格测放在外墙相应位置。为施工提供检测放线标志,亦可作为按图施工的标志。
按照施工图纸确认建筑物朝向及外墙障碍物的位置是否正确,若不正确,第一时间与技术部协调,确认。

b、高程控制检测
借助水准仪,选取外墙支架平面中最低点为基准,测定外墙施工范围内的起伏高差,做好标记,以便支架安装时调平零件的统计、制作及后续工作的施工。

1.1.4样件组焊:
支架批量安装前要做好样件的试点焊,安装工艺及要求参见1.1.5。
待质检及设计确认合格、封样后方可批量点焊支架。



1.1.5、支架和方阵拼装
a、根据设计图纸及现场检测结果定位第一组支架安装起始位置。

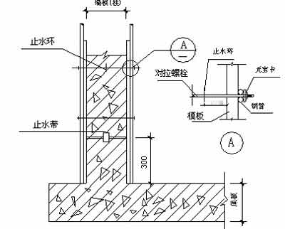
b、按施工图纸和相关技术要求,点焊底横梁和左右榀支架。点焊要求参见【焊接工艺解读】

c、按照设计图纸规格确定主横梁位置,用螺钉固定主横梁,完成独立标准支架的组装作业。特殊位置支架(带斜支撑支架、带箱柜支架)的点焊。如图所示:螺丝联接参见【螺栓安装工艺解读】。

d、独立支架点焊组装完成后,首先将独立支架摆放到第一步确定的位置,垫橡胶垫圈,严禁钢结构支架与外墙防水层直接刚性接触。再根据图纸规格依次安装支架,左右联接螺母固定。完成单排支架安装作业。螺丝联接参见【螺栓安装工艺解读】


e、在第四步的基础上,根据设计图纸确定第二排安装位置。进行第二排支架的安装作业。两排之间用预制构件螺丝联接牢靠。按d、e次序依次安装完成样板方阵安装作业。



f、样板支架方阵安装完毕后放置配重混凝土压块,配重压块根据设计图纸位置及形式放置。如图所示:

g、按照设计图纸进行外墙组件支架的整体安全固定及组件避雷联接。

h、以上步骤完成以后电焊焊的彩钢房骨架,对外墙防水破坏处进行修复施工,支架钎焊及支架预制构件切割处进行防腐处理。完成支架样板方阵全部安装作业。
i、报检。并按照质检结果整改。
1.1.6、样板方阵合格后,根据上述步骤依次完成单体建筑外墙支架安装工程。
1.1.7、质量控制点
支架组装规格
支架钎焊质量
方阵安装位置
螺丝联接质量
与外墙柔性接触安装质量防水、防腐处理
1.2、彩钢外墙骨架安装
1.2.1、施工打算
a、施工范围
按照设计图纸确定施工范围,项目总监及施工人员到现场进行施工范围确认。
b、技术打算
①项目部技术负责人会同设计部门核实施工图纸,并对施工作业人员进行安装施工技术交底。项目部要熟悉、会审图纸,充分了解设计文件和施工图纸的主要设计意图,明晰工程所采用的设备和材料,明晰图纸所提出的施工要求,便于及早采取举措,确保施工顺利进行。
②施工项目部应熟悉与工程有关的其他技术资料,如施工协议,施工及初验规范、技术规范、质量检验评定等强制性文件条文。
③项目总监编制施工组织设计并针对有特殊要求的分项工程编制专项施工方案。按照光伏工程设计文件和施工图纸的要求,结合施工现场的客观条件、设备器材的供应和施工人员数目等情况,安排施工进度计划和编制施工组织计划,做到合理有序的进行安装施工。安装施工计划必须详尽、具体、严密和有序,以便监督施行和科学管理。
c、材料及主要工具
按照公司目前彩钢房子面光伏工程,外墙组件龙骨结构涉及到的主要材料有:C工字钢、彩钢卡具、螺栓组。
主要工具有:
①电钻:现场开孔、扩孔;
②各种机型的扳手:拧各类螺丝
d、作业条件
①严禁在未有施工保护举措的高处作业。
②工人员禁止醉酒步入施工现场。
③施工人员步入施工现场禁止穿凉鞋、凉鞋、高跟鞋。
1.2.2、工艺流程图

1.2.3、彩钢房子面龙骨安装具体步骤:
a、准备工作,把螺丝平行拧到卡具上备用。


b、测量放线、排尺,按照设计图纸中彩厚板锁边和采光带的位置关系以及龙骨卡具的位置规格定位第一个方阵中第一排的卡具位置和第二个方阵中第一排卡具的位置。依次排尺,确定外墙各排方阵龙骨卡具安装位置。

c、安装固定卡具。

d、按照设计图纸安装组件龙骨。



e、按照以上步骤操作,完成龙骨方阵的安装。

注:外墙龙骨安装施工中根据设计要求做好样件及样板方阵的安装。报关。待质检及设计确认合格后方可批量安装安装。
1.2.4、防水修复
①对破坏原有彩钢外墙,机制钉联接处进行防水修复处理。
②对施工中引起原有外墙防水层失效部位进行防水修复。
1.2.5、质量控制点
外墙施工安全保护举措
龙骨卡具安装质量
龙骨安装质量
外墙防水修复质量
联系我时,请说是在二手彩钢网看到的,谢谢!!