一下别墅精装修预算报价单如何看懂装修公司的模式?
- 手机:
- 微信:
- QQ:
- 发布人:佚名
- 所属城市:重庆
信息描述
这些住宅家装住户对住宅家装决算和成本都比较蒙圈,每家居修公司价格不一,差异甚大,零乱无章,让人不晓得选择哪家居修公司,读懂住宅毛坯修决算价格单是一件很费脑的事情,有或许见到家装决算很低,而且在施工过程中还会出现各类增项问题,所以读懂住宅毛坯修决算价格单就显得至关重要了,现在我们就一上去了解一下住宅毛坯修决算价格单怎么读懂。

01了解家装公司的方式
住宅毛坯修决算价格单可以看出家装公司的方式,有的家装公司是半包方式,辅材家居都还要自己去材料市场订购,有的家装公司是全包方式,可以达到提包入住的疗效,辅材和家居都可以在家装公司定。

02初审图纸是否确切
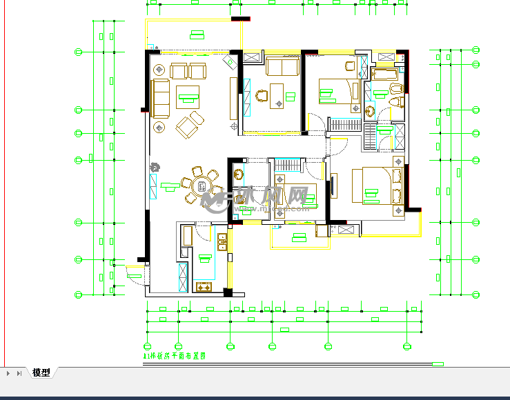
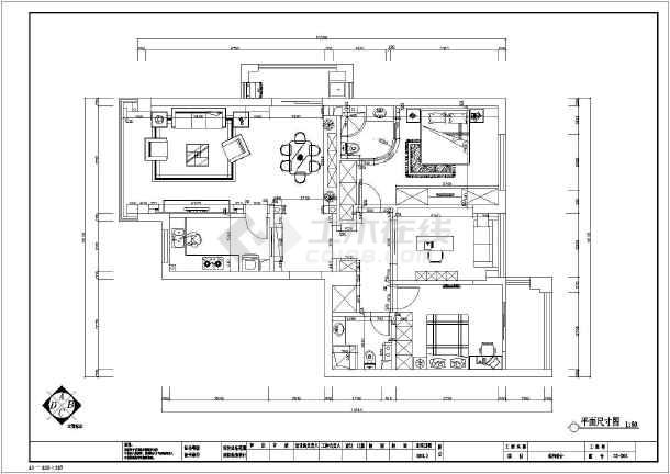
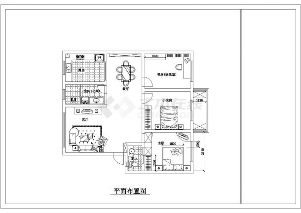
一套完整、详细、准确的图纸是决算价格的基础,价格都是按照图纸来进行决算的,因此一定要先对图纸进行初审。


03安装工程项目是否齐备

住宅毛坯修过程中会牵涉到拆改、水电、泥工、木工、油漆等安装工程项目,其中有太多细节项目都是应当做的项目,价格单旁边还有明晰的标志,家装住户可以多拿几份价格单对比。
04图纸与决算宽度应一致

用图纸上的规格估算出铺地板的面积是160平米,这么决算数应当是160平米左右,数据估算应当是相当缜密和精确的。


05计量单位会影响决算结果
家装价格单中的单位主要有平米、米和项,也有个、延米等。有的东西既可以用平米/米/延米或则项/个等单位表示的,一定要让家装公司标识为平米/米/延米彩钢房预算报价明细表,不要用个或则项等模糊概念。
06材料和工艺说明要详细
所报项目的售价是由哪些材料、什么工艺构成的,这种问题一定要说明清楚细腻。另外彩钢房预算报价明细表,每一个型号都应写在前面,包括材料的品牌、规格、单位、单价、数量、合计余额等都要全部地写清楚。

